- BGF: 10.910 m²
- NF: 9.760 m²
- Leistungsphasen: Entwurf LP2-3 | GÜ
- Baubeginn: 2026
- Fertigstellung: 2028
- Bauherr: campuscienceconomy wissenschaftspark Kiel
- BGF: 10.093 m²
- NF: 8.700 m²
- Leistungsphasen: Entwurf LP2-3 | GÜ
- Fertigstellung: 2026
- Bauherr: campuscienceconomy wissenschaftspark Kiel
- BGF: 7.615
- NF: 7.234
- Leistungsphasen: Entwurf LP2-3 | GÜ
- Fertigstellung: 2024
- Bauherr: campusienceconomy wissenschaftspark Kiel
- Wohnfläche: 1532 m²
- Leistungsphasen: 1-9
- Baubeginn: 2022
- Bauherr: Kieler Wohnungsgesellschaft mbH & Co.KG
- Wettbewerb: Juni 2021
Der markante Baukörper schafft eine neue Kante für den bisher in diesem Bereich ausufernden Tilsiter Platz. Er nimmt die Traufhöhen der Häuser in der Timkestraße auf und vermittelt durch sein asymmetrisches Dach zu den 4- bis 6-geschossigen Häusern in der Havemeisterstraße.Die Baufluchten der angrenzenden Häuserzeilen werden aufgenommen und somit der Schluss des Blockrands vollzogen.
Das Motiv der mit Hecken und Bäumen umsäumten Vorgärten wird fortgeführt.Im südlichen Bereich ist ein Gemeinschaftsgarten geplant, der vor allem jungen Familien einen geschützten Aufenthalts- und Spielraum bietet. Der Baukörper weicht gegenüber dem südlichen Nachbarn zurück, um die Besonnung zu verbessern und dem Bestand genügend Raum zu lassen.
Die Fassade wird in Anlehnung an den Bestand in der Havemeisterstraße und aus Gründen der Nachhaltigkeit aus einem Ziegelverblendmauerwerk erstellt. Der Schwerpunkt des Wohnungsmixes liegt bei Wohnungen für 3- bis 4-Personen. Sämtliche Wohnungen sind barrierefrei erreichbar.
- Kosten: 10.000.000 €
- Wohnfläche: 3.866 m²
- Baubeginn: 03.2024
- Fertigstellung: 12.2025
- Bauherr: Stiftung Kieler Stadtkloster
Der Bestandsbau des Pflegeheims Haus Schwentineblick in der Schönkirchener Straße in Kiel Dietrichsdorf aus den 1960er Jahren entspricht nicht mehr den heutigen Anforderungen an ein altersgerechtes, barrierefreies Wohnen.
Der ursprünglichen Teil des Gesamtgebäudes und das freistehende Rentnerwohnhaus wird abgebrochen und durch einen Neubau zu ersetzt. Der neuere, westliche Gebäudeteil an der Schönkirchener Straße mit Angebot der stationären Pflege bleibt erhalten und wird auf mehreren Ebenen barrierefrei mit dem Neubau verbunden, um Räume für die Betreuung, Begegnung und den Speisesaal gemeinsam nutzen zu können. Der Neubau beinhaltet den zukünftigen Haupteingang für das Gesamtgebäude mit einer barrierefreien Erschließung von der Schönkirchener Straße. Hier liegt auch die zweite Grundstückszufahrt für Anlieferungen, Krankentransporte, Feuerwehr und die Tiefgarage. Über die nördliche Straße Steertsraderedder wird das Gebäude ebenfalls barrierefrei erschlossen.
Der Neubau ist in drei Baukörper aufgeteilt, um die Baumasse zu gliedern und eine angemessene Einfügung in die heterogene Nachbarbebauung zu erreichen. Die Gliederung ermöglicht zudem eine hohe Identifikation der Bewohner mit ihrem jeweiligen Haus.
Die Baukörper werden mit einer Wandelhalle verbunden, an der im Erdgeschoss die Gemeinschaftsräume, sowie die Büro- und Serviceräume liegen. Die Wandelhalle schafft neben der Verbindung der Gebäude Treffpunkte und Aufenthaltsräume für die Bewohner. Speiseraum, Gemeinschaftsraum und Wandelhalle sind durch Mobilwände getrennt, um bei einer Öffnung eine große zusammenhängende Fläche für größere Veranstaltungen zu schaffen.
Dies ist der neue Zentralbereich mit der Anbindung an den Bestand, der Versorgung der Bewohner und der vertikalen Erschließung der anschließenden Wohnebenen.
Die Wohnbereiche sind mit jeweils bis zu 8 Wohnungen an einem Flur kleinteilig, einfach und übersichtlich gegliedert.
- Bauherr: WOBA Wohnungsbaugesellschaft Böklund mbH
In den vergangenen Jahren wurden auf dem Gelände der in Schleswig seit 1872 bestehenden Fachklinik für Kinder- und Jugendpsychiatrie und -psychotherapie zwischen Friedrich-Ebert-Straße und Hesterberg umfangreiche Neubau- und Modernisierungsmaßnahmen durchgeführt. Der östliche Teil des Klinikgeländes mit dem ehemaligen Hauptgebäude und zwei unter Denkmalschutz stehenden Gebäuden wird für den Klinikbetrieb nicht mehr benötigt. Nach dem Verkauf der Flächen an einen Investor wurde das ehemalige Hauptgebäude inzwischen abgerissen. Es ist die Entwicklung eines verdichteten Wohnquartieres mit etwa 200 Wohnungen unterschiedlicher Größen unter Erhaltung der vorhandenen denkmalgeschützten Gebäude geplant.
Das Konzept sieht eine Unterteilung des Plangebiets in drei Baufelder vor, die entsprechend ihrer städtebaulichen Lage und Beschaffenheit unterschiedlich entwickelt werden sollen.
Für das Baufeld I im Nordosten des Plangebiets ist eine vier- bis fünfgeschossige Mehrfamilienhausbebauung in offener Bauweise vorgesehen. Das fünfte Obergeschoss soll dabei grundsätzlich als Staffelgeschoss ohne weiteres Geschoss darüber ausgeführt werden. Mit dieser verdichteten und städtischen Bebauung soll der stadtbildprägenden Lage der Fläche Rechnung getragen werden. Die vorgesehene Bebauung fügt sich damit in die Umgebung ein und unterstreicht gleichzeitig den urbanen Charakter des neuen Wohnquartiers. Auf dem Baufeld I können insgesamt etwa 90 Wohneinheiten entstehen.
Das Baufeld II erstreckt sich westlich des Baufeldes I in Richtung Süden mit den beiden denkmalgeschützten Klinikgebäuden aus den 20er Jahren. Hier ist der Erhalt dieser Gebäude und der Ausbau zu Wohngebäuden unter Beachtung der denkmalschutzrechtlichen Vorgaben vorgesehen. Zusätzlich soll das Baufeld durch drei Mehrfamilienhäuser in offener Bauweise weiter verdichtet werden, wobei die städtebauliche Dichte deutlich unter der des Baufeldes I zurückbleiben soll. Insbesondere soll die Fläche des ehemaligen Hippodroms als Grünfläche freigehalten werden. Die drei Neubauten sind als dreigeschossige Gebäude zuzüglich Staffelgeschoss vorgesehen und sollen sich in Fassadenlänge und Höhe den beiden denkmalgeschützten Gebäuden unterordnen. In ihrer Anordnung sollen sie sich an den Fassadenfluchten der vorhandenen Gebäude orientieren. Auf dem Baufeld II können insgesamt etwa 80 Wohneinheiten entstehen.
Das Baufeld III liegt im Süden des Plangebiets. Für dieses Baufeld sind die Planungen noch nicht konkret. Ursprünglich war auch hier eine Mehrfamilienhausbebauung vorgesehen, inzwischen wird aber auch die Option einer verdichteten Reihen- oder Doppelhausbebauung erwogen. Da die Bebauung dieses Bereiches im zeitlichen Ablauf erst nach der Bebauung der Baufelder I und II vorgesehen ist und die Entwicklung der örtlichen Nachfrage nicht genau vorhergesehen werden kann, sollen hier die baurechtlichen Festsetzungen beide Optionen ermöglichen und damit deutlich offener gefasst werden, als auf die anderen Baufeldern. Die städtebauliche Lage ohne direkte Sichtbeziehungen zu der Fläche aus dem öffentlichen Raum erfordert hier auch keine zu restriktiven Festsetzungen. Auf dem Baufeld II können je nach Variante insgesamt etwa 20 bis 50 Wohneinheiten entstehen.
- Wohnfläche: ca. 2700 m²
- Baubeginn: 2022
- Bauherr: WOBA Böklund GmbH
In Jübek, im Geländebereich der ehemaligen Gärtnerei, zwischen der Danziger Straße und der Großen Straße, wird ein Bauprojekt bestehend aus zwei Reihenhauszeilen und zwei Mehrfamilienhäusern entstehen. Im nördlichen Bereich, an der Danziger Straße, entstehen die zwei Reihenhauszeilen mit jeweils 6 Reihenhäusern und deren Müllstellplatz und Zufahrten, im südlichen und westlichen Bereich jeweils ein Mehrfamilienhaus mit jeweils 11 Wohnungen. Im mittleren östlichen Gebietsbereich sind die Stellplatzanlagen der Mehrfamilienhäuser angeordnet. Der Zugang zu den Mehrfamilienhäusern und deren Müllstellplatz, Fahrradschuppen und Stellplätze erfolgt von der Großen Straße.
Die 11 Wohnungen im Mehrfamilienhaus variieren in ihrer Wohnfläche von etwa 63 m² bis 108 m², die sich auf 2 bis 4 Zimmer verteilen. Jede Wohnung verfügt über einen Balkon, eine Loggia oder eine Terrasse. Im Treppenhaus ist ein Aufzug angeordnet, der es Bewohnern und Besuchern ermöglicht, die Etagen von der Erdgeschossebene bis zum obersten Geschoss barrierearm zu erreichen.
Sowohl die Reihen – als auch die Mehrfamilienhäuser werden auf Grundlage der EnEV 2014 in KfW 55 Bauweise gebaut und gliedern sich in Erdgeschoss, Obergeschoss und Dachgeschoss.
- BGF: 986 m² | 632 m² | 860 m²
- NF: 203 m² | 62 m² | 140 m²
- Wohnfläche: 564 m²/ 8 WE | 443 m²/ 7 WE | 572 m²/ 7 WE
- Fertigstellung: 2023
- Bauherr: Kieler Stadthaus
- Visualisierung: 3dpixel
In Kalifornien, direkt am Ostseestrand in der Schleswig-Holsteinischen Propstei, wurden drei Wohngebäude mit je 7 bis 8 Ferienwohnungen errichtet. In dem Ferienort entwickelt sich der Tourismus von einer saisonalen zu einer ganzjährigen Nutzung, entsprechend wächst der Bedarf. Die Wohnungsgrößen variieren zwischen 60 und 90 m².
- BGF: ca. 1.755 m²
- Wohnfläche: 1.397 m²
- Bauherr: Gemeinde Strande
- Preis: 2. Platz
- Visualisierung: 3dpixel
Zur Aufnahme der Maßstäblichkeit der umgebenden Einfamilienhäuser werden vier Baukörper geplant, von denen jeweils zwei im Obergeschoss verbunden sind. Die Häuser stehen auf dem Niveau des Knickfußes, der Hangverlauf wird nur geringfügig angepasst. Der Trampelpfad direkt hinter dem Knick bleibt für die öffentliche Nutzung erhalten. Parallel entsteht ein gepflasterter Weg, der die Häuser fußläufig erschließt und sich zu kleinen Plätzen im Bereich der Hauseingänge für Begegnung und gemeinschaftlichen Aufenthalt erweitert.
Die Landschaft der Auwiese wird zur Streuobstwiese, fließt ohne erkennbaren Übergang zwischen den Häusern durch und soll möglichst naturnah bleiben. Die Bewohner können kleinere, nicht parzellierte Flächen gärtnerisch nutzen und ihr Umfeld so gemeinsam gestalten und bewirtschaften. Im Kellergeschoss eines der Häuser befindet sich ein Gemeinschaftsraum mit Gärtnerei und Werkstatt.
Die kleineren Wohnungen sind nach Westen orientiert und haben durch die Anordnung der Loggien auch aus dem Innenraum Ausblicke in Richtung der Auwiesen. Die größeren Wohnungen liegen jeweils an den Köpfen der Häuser und erhalten so auch schon morgens Sonne, die auskragenden Teile der Freisitze werden bereits mittags besonnt.
- BGF: 6.170 m²
- NF: 2.575 m²
- Wohnfläche: 2.790 m² | 50 Apartments
- Bauherr: Kieler Stadthaus
- Visualisierung: 3dpixel
Das Grundstück mit einer bestehenden Hotel- und Gastronomienutzung liegt umschlossen von Ferienhäusern direkt hinter dem Deich am Ostseestrand Kalifornien. Die Neubebauung sieht 50 Apartments in einem „Aparthotel“, mit Restaurant und Wellness vor. Die Stellplätze im EG werden von Apartments umfasst, von der darüber liegenden Ebene besteht freier Blick auf die Ostsee, eine Brücke verbindet das Aparthotel mit der Deichkrone. Diese erhöhte Plaza ist Erschließungs-, Spiel – und Freizeitfläche mit direkter Verbindung zu jedem Apartment, die sich über 2 ½ weitere Geschosse ringförmig um den Hof legen. Das Restaurant und die Wellnesseinrichtung liegen im 1.OG und haben direkten Bezug zur Ostsee
- BGF: 4.380 m²
- NF: 3.940 m²
Das viergeschossige Gebäude, wurde auf Initiative aus dem Gesundheitswesen von stationären und niedergelassenen Ärzten konzipiert. Je Etage sind bis zu vier Nutzungseinheiten möglich. Der sich öffnende U-förmige Baukörper, bildet einen Eingangshof zur Straße. Dieser Hof bildet die Adresse des Gebäudes, den Nutzer*innen steht ein nach Süden ausgerichteter Freiraum mit bepflanzte Grüninseln und Sitzbänken, mit hoher Aufenthaltsqualität, zur Verfügung. Straßenseitig werden die beiden Gebäudeflügel mit einem “Lamellendach“ verbunden, dieses Dach schließt das Gebäude optisch ab und rahmt den Eingangshof zur Straße.
- BGF: 7332,6 m²
- Bauherr: Kreis Nordfriesland
- Visualisierung: 3dpixel
Das Gebäude weicht zum Erhalt der großen Bäume im Kreuzungsbereich Ferdinand-Tönnies-Straße / Marktstraße zurück und engt hierdurch den Straßenraum nicht zu sehr ein. Zur Parkseite kragen die beiden oberen Ebenen des 5-geschossigen Bauteils aus, um die Grünfläche in möglichst großer Breite offen zu halten. Der Freiraum vor dem Kreishaus an der Marktstraße wird durch den Erweiterungsbau neu gefasst und wird stärker als Platz erlebbar.
Der Neubau besteht aus 2 Baukörpern, die gleichzeitig die Funktionen des Hauses abbilden. Die unteren drei Geschosse beinhalten das Sozialzentrum und den Fachbereich Gesundheit, in den beiden oberen Ebenen des 5-geschossigen Teils ist der Fachbereich Arbeit und Soziales untergebracht.
Der neu angelegte Campuspark bildet die Fortsetzung als Grünachse aus dem Schlosspark Richtung Norden und schafft neue Aufenthaltsmöglichkeiten zur aktiven Pausengestaltung für Mitarbeiter und Besucher des Kreishauses und der Klinik.
Der Haupteingang zum Erweiterungsbau liegt an dem neu gefassten Platz mit dem Haupteingang des Kreishauses an der Marktstraße. Gleichzeitig gibt es einen weiteren Eingang aus Richtung des Parks. Eine verglaste Brücke verbindet den Neubau mit dem Bestand, Rampen vermitteln zwischen den unterschiedlichen Niveaus.
Unmittelbar am Haupteingang liegt der zentrale Empfangs- und Infobereich als Verteiler in die angeschlossenen Fachabteilungen. Die über das Glasdach natürlich belichtete Eingangshalle des Sozialzentrums mit dem Empfangsbereich im Erdgeschoss erstreckt sich über drei Geschosse, bietet eine leichte Orientierung und übersichtliche Wegeführung durch die freien Treppen auf die Galerien der angeschlossenen Obergeschosse.
Durch das Gebäude ziehen sich Deckenöffnungen mit den freien Treppen Mittel zur Verbindung und Kommunikation zwischen den Ebenen. Das Atrium lenkt Tageslicht in die inneren Bereiche und versorgt anliegende Räume mit Außenluft.
- BGF: 2591 m²
- Bauherr: Gemeinde Langeneß
- Preis: 3. Platz
Die Hallig Langeneß ist eine der größten Halligen vor der Schleswig-Holsteinischen Nordseeküste. Ihre einzigartige Naturlandschaft bildet einen außergewöhnlichen Lebensraum im Zusammenspiel von Menschen und Natur. Im Herzen der Hallig, auf der Treubergwarft, entsteht ein neuer zentraler Treffpunkt für die Halligbewohner und Besucher. Die drei Baukörper bilden zusammen ein harmonisches Ensemble, welches den Menschen auf der Hallig Schutz und Geborgenheit bietet und sich gleichzeitig harmonisch in die Umgebung einfügt. Die Gebäude vereinen die verschiedenen Funktionen aus einem Gemeindezentrum mit Café und Kaufmann, dem Bauhof und LKN, sowie einem Arzt und neuen Wohnungen.Die winkelförmigen Gebäude nehmen die Form des traditionellen Langhauses auf und verschneiden sich so, dass jeweils ein windgeschützter Außenbereich entsteht. Die Baukörper stehen auf einem gemeinsamen Sockel und verzahnen sich so miteinander, dass eine starke Einheit um einen zentralen Hof entsteht. Dieser innenliegende, begrünte Hof befindet sich fünfzig Zentimeter über dem Warftplatteau und orientiert sich zum denkmalgeschützten Fething. Er wird ebenerdig erreicht, verbindet alle Gebäude und wird zum kommunikativen Mittelpunkt. Den Freiraum der Warft erreicht man über Rampen und Stufen.
- BGF: 2.462 m²
- NF: 1.889 m²
- Wohnfläche: 132 m²
- Fertigstellung: 2018
- Bauherr: Rafikh Ben-Hassen
Der Standort des Bürogebäudes liegt im Technologie-Park-Itzehoe, mit dem Fraunhofer-Institut für Siliziumtechnologie ISIT, dem Spezialisten für die Entwicklung, Fertigung und Integration mikromechanischer und mikroelektronischer Bauelemente und dem IZET – Innovationszentrum Itzehoe. In diesem Umfeld entstand der Bedarf flexiblen Büroflächen, von einzelnen Zellenbüros bis zu abgeschlossenen Büroeinheiten mit max. 400qm.
Das Gebäude reagiert mit seiner Struktur auf den sich immer wieder ändernden Bedarf. Ein zentraler Treppenraum, mit angegliederten Nebenräumen, bildet den Kern des Bürohauses. Um diesen Kern bilden sich Nutzungseinheiten unterschiedlicher Größe, die über einen Nebenflur an das Treppenhaus angeschlossen sind. Bei größeren Einheiten kann auf den Nebenflur verzichtet werden. Das zwei / dreigeschossige Eingangsfoyer bildet den kommunikativen Mittelpunkt des Gebäudes.
Die tragende Konstruktion reduziert sich auf den inneren “Kern“ und eine umlaufende Stützenreihe, somit kann auf alle Veränderungen flexibel reagiert werden, die Fassade konnte frei von statischen Zwängen gestaltet werden.
- BGF: 4.540 m²
- NF: 1.136 m²
- Wohnfläche: 2.800 m² / 29 WE
- Fertigstellung: 2017
- Bauherr: Privat
Auf einem ehemalig, durch einen Autohandel gewerblich genutztem Grundstück, sollte in einem durch Wohnnutzung geprägtem Umfeld, neuer Wohnungsbau entstehen. Durch die Tiefe des Grundstücks entstand ein Entwurf mit zwei Baukörpern. Das Gebäude an der Heinrich-Helbing-Str. nimmt die Geschossigkeit und Bauflucht der Nachbarschaft auf. Das zweite Gebäude im hinteren Teil des Grundstücks, nimmt die Fluchten der angrenzenden Hinterhofbebauungen der Nachbarschaft auf. Der grüne Innenhof verbindet beide Baukörper zu einem Ensemble.
- BGF: 4.973 m²
- Leistungsphasen: 1-8
- Fertigstellung: 2017
- Bauherr: BUWOG Kiel V GmbH
Das 3-geschossige Hotel mit 87 Zimmern und 134 Betten ist ursprünglich Mitte der 1980er Jahre als Postwohnheim errichtet und genutzt worden.
In 2 Bauabschnitten sind bis 2003 durch umfangreiche Umbaumaßnahmen aus den einfachen Zimmern mit Gemeinschaftsbädern Hotelzimmer mit zugehörigen Einzelbädern entstanden.
Im Erdgeschoss befinden sich die Rezeption und Foyer, Technikräume, Frühstücksraum mit kleiner Küche, Konferenzräume, Gästezimmer. Im 1. und 2. Obergeschoss und im Dachgeschoss befinden sich Gästezimmer.
Ziel der derzeit geplanten Maßnahme ist es, vorhandene Hotelzimmer durch Modernisierung und Zusammenlegung in einen höheren Standard zu versetzen und durch den Ausbau nicht mehr erforderlicher Tagungsräume im Dachgeschoss weitere Übernachtungskapazitäten zu schaffen. Hierfür sind teilweise erhebliche Eingriffe mit Abfangungen in das Tragwerk erforderlich.
Gleichzeitig soll das Gesamtgebäude aus der Sicht des vorbeugenden Brandschutzes bewertet werden, um es in einen sicheren und zukunftsträchtigen Zustand zu versetzten.
Hierfür werden auf Grundlage des Brandschutzkonzepts fehlende Schottungen von Leitungsanlagen eingebaut, Leitungen aus Spitzböden verlegt, Feuerschutztüren und Brandschutzbekleidungen ertüchtigt und ergänzt.
Die hochbaulichen und technischen Maßnahmen betreffen nahezu sämtliche Räume des Gebäudes und müssen daher in enger Abstimmung mit dem Mieter während des laufenden Hotelbetriebs in genau festzulegenden Bauabschnitten und -zeiten durchgeführt werden.
- Wohnfläche: 4.639 m²
- Bauherr: WOBA Wohnungsbaugesellschaft Böklund mbH
- Visualisierung: 3dpixel
Der Entwurf übernimmt die Festsetzungen und gestalterischen Vorgaben aus dem städtebaulichen Realisierungswettbewerb und den weiteren Planungen aus dem Verfahren der Bauleitplanung und der Gestaltungssatzung.
Die Gebäude entlang der Elefantenstraße, Tulipan- und Untereiderstraße werden als Mehrfamilienhäuser mit 2 Vollgeschossen und ausgebautem Dachgeschoss auf einem zusammenhängenden Kellergeschoss mit Tiefgarage errichtet.
Einfahrten zur Tiefgarage sind von der Tulipan- und der Untereiderstaße vorgesehen, um eine Konzentration des Verkehrs zu vermeiden.
Sämtliche Wohnungen sind barrierefrei erreichbar.
An der Ecke Elefantenstraße / Tulipanstraße sind Wohngruppen mit 22 Plätzen für Menschen mit Betreuungsbedarf vorgesehen, die als Ergänzung für bestehende Wohngruppen der Diakonie in den umliegenden Altbauten dienen können. Hier besteht insbesondere die Chance, moderne barrierefreie Lösungen für Menschen mit unterschiedlichsten Behinderungen zu schaffen.
Denkbar ist zudem eine zukünftige Nutzung des denkmalgeschützten Lager- / Stallgebäudes z.B. für Werkstätten in Verbindung mit den Wohngruppen.
An der Arsenalstraße entstehen 5 giebelständige Stadthäuser für Familien, deren KFZ ebenfalls in der Tiefgarage untergebracht werden.
Die erdüberdeckte Tiefgarage ermöglicht einen Freibereich für die Bewohner mit unmittelbar den Wohnungen zugeordneten, kleinen privaten Gärten und einem allgemeinen Aufenthaltsbereich mit einem Spielplatz für die Kinder. Der Innenhof ist für alle Wohnungen zusätzlich über Zugänge von der Tulipan- und der Elefantenstraße erreichbar.
Die Gebäude sind durch Vor- und Rücksprünge, durch die unterschiedlichen Höhen und die Zwerchhäuser klar gegliedert, so dass die einzelnen Häuser ablesbar und die Identität deutlich ist.
Alle Außenwände sind mit einem Verblendziegelmauerwerk mit unterschiedlichen Ziegelfarben bekleidet. Hierdurch wird die durch die Gestaltungssatzung geforderte Gliederung und Plastizität erreicht.
- BGF: 740 m²
- Fertigstellung: 2016
- Bauherr: Budenzauber Betriebs- u. Cateringgesellschaft mbH
- Bildnachweis: Bevis Photography
Der alte Hauptgüterbahnhof in Kiel wurde 2015/2016 in enger Abstimmung mit der Denkmalschutzbehörde saniert und zu einer der am besten ausgestatteten Eventlocations des Nordens umgebaut. Der Aufwand hat sich gelohnt, denn der Bahnhof präsentiert sich nun als ebenso charaktervolle wie charmante Eventlocation, die keine Annehmlichkeiten vermissen lässt.Außen historischer, roter Ziegelstein, innen weiß getünchte Wände, der originale, offene Holzdachstuhl und dazu viel Glas, Edelstahl, weißes Interieur und originelle Accessoires – alles fein aufeinander abgestimmt, so dass ein atmosphärisches Ganzes entsteht. Besonders glücklich sind die Proportionen: Länge, Breite und Deckenhöhe verleihen dem Raum trotz seiner Größe eine angenehme Intimität.Die Eventküche mit Front-Cooking schafft eine offene Atmosphäre und bietet Einblicke in die Zubereitung der Speisen für verschiedene Feiern.Dazu kommt ein geschützter Hinterhof in sonniger Südlage mit weitem Blick auf das Vieburger Gehölz, der in den Sommermonaten zum Grillen und Feiern im Freien einlädt. In den eher unbeständigen Monaten steht dafür die überdachte Galerie zur Verfügung, die ehemalige Laderampe des Güterbahnhofs.Zentralität, kostenfreie Parkplätze, gute Erreichbarkeit mit öffentlichen Verkehrsmitteln und die geschützte Lage am Rande eines Gewerbegebietes ohne Einschränkungen bei der Lärmemission machen den Güterbahnhof zur optimalen Location für Feiern aller Art.
- BGF: 736 m²
- NF: / NF: 669 m²
- Leistungsphasen: 1-9
- Fertigstellung: 2016
- Bauherr: Landwirtschaftlicher Buchführungsverband
- Visualisierung: 3dpixel
Veränderungen in der Arbeitswelt und der Wunsch nach einem energetisch optimierten Gebäude, führten zu der Entscheidung für den Neubau eines Bürogebäudes. Die Arbeitsplätze der Mitarbeiter wurden im Obergeschoss in Zweipersonenbüros organisiert und alle Büros öffnen sich mit Verglasungen zu der inneren Zone. Jeder Mitarbeiter kann sich als Teil der Kanzlei identifizieren, es gibt keine hierarchischen Räume oder weniger attraktive Lagen.
Über einen Luftraum mit eingestellter Treppe ist das Obergeschoss mit dem Erdgeschoss verbunden, dieses Atrium schafft Durchlässigkeit und fördert die Kommunikation zwischen den Geschossen. Im Erdgeschoss liegen Empfang, Besprechungs- und Beraterzimmer in denen alle Mandantengespräche stattfinden.
Die kompakte, scharfe Gebäudekubatur des dunklen Klinkermauerwerks optimiert den energetischen Verbrauch. Über den Luftraum mit dem Oberlicht wird einerseits das Innere des Gebäudes mit Tageslicht ausgeleuchtet, andererseits kann über eine Öffnung im EG und das Oberlicht im Dach eine Nachtauskühlung im Sommer erfolgen. Die massiven Flurumfassungswände wirken als Wärme- /kältespeicher.
- BGF: 9.700 m²
- Bauherr: Land Schleswig Holstein
- Visualisierung: 3dpixel
Zwischen Olshausenstraße und dem Juridicum entsteht durch das Einebnen des Walls und das Auslichten des Baum- und Strauchbestands ein neuer Platz, der die Hauptverkehrswege vom Sportforum, der Olshausenstraße und des Schwarzen Wegs zum Juridicum lenkt und das Gebäude als neuen Auftakt zum Campus fasst. Auf dem Platz verzahnen sich Nutzungen aus dem Innern des Hauses mit dem Außenraum, hier liegen die besonnten Freibereiche zum Aufenthalt und Treffen. Die Grünanlagen aus dem Campuspark ziehen sich bis zum Platz, lösen sich auf und dringen zum Teil in das Gebäude.
Die verschiedenen Funktionsbereiche sind mit ihrer Höhenentwicklung und den aus den Nutzungen resultierenden Fassadengestaltungen deutlich ablesbar: Die Bibliothek als monolithischer Körper und die mäanderförmigen Lehrstuhlbereiche liegen auf einem transparenten Glassockel, der die öffentlichen Bereiche des Gebäudes aufnimmt.
Die Lobby durchzieht als Rückgrat das gesamte Erdgeschoss und erschließt sämtliche Areale. An räumlichen Aufweitungen entstehen flexible, informelle Arbeitsplätze, die der kurzfristigen, spontanen Zusammenarbeit dienen. Zusammen mit den Läden, und dem Café entsteht hier ein lebendiges, kommunikatives Zentrum.
- BGF: EG bis 4. OG: 6.162 m² I TG: 2.492 m²
- NF: NF 4.765 m²
- Fertigstellung: 2015
- Bauherr: novomind
- BGF: 11.241 m²
- Wohnfläche: 6.616 m²
- Leistungsphasen: 2-8
- Fertigstellung: 2014
- Bauherr: Frank Heimbau Kiel GmbH
- Bildnachweis: Aloys Kiefer
Unterhalb der Sternwartensiedlung werden am Rand des Düsternbrooker Gehölzes die Entwürfe von 3 Architekturbüros realisiert, die aus einem Wettbewerbsverfahren erfolgreich hervorgegangen sind. Das Ensemble besteht aus 7 klassisch modernen Stadtvillentypen mit jeweils mehreren Wohnungen, die auf einer gemeinsamen Tiefgarage gebaut werden. Die Volumen der Häuser und die Fassadenmaterialien Putz und Ziegel nehmen die vorhandenen Hausformen des Umfelds auf und vervollständigen die Bauflucht an der Straße.
- BGF: 2.600 m²
- Bauherr: campuscienceconomy Wissenschaftszentrum Kiel GmbH
- Visualisierung: 3dpixel
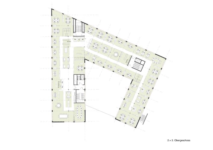
Das Wissenschaftszentrum in Kiel plant eine Erweiterung im südlichen Bereich ihres Grundstückes. Der Erweiterungsbau rückt vom Bestand ab, hält aber eine räumliche Verbindung im Erd- und ersten Obergeschoss, bildet einen räumlich umschlossenen, intimen Hof zum Konferenzsaal und nimmt die Bauflucht der auskragenden Geschosse auf. So entsteht im Vorbereich eine raumbildende Kante, die den großen Platz Richtung Universität fasst und den bestehenden Haupteingang durch den bewussten Verzicht auf einen weiteren Eingang zusätzlich stärkt. Raumflexibiliät ist prägend für den Entwurf. Somit ist die Basis für die hohe Flexibilität die weitgespannten, unterzuglosen Decken, raumgestaltende Stahlbetonstützen im Fensterbereich und großflächige Glasfronten.
- BGF: 13.515 m²
- Bauherr: Projektgesellschaft Kiel mbH & Co. KG
- Visualisierung: 3dpixel
Leitidee des Entwurfs ist die moderne Interpretation der in Kiel nur begrifflich vorhandenen „Altstadt“ und deren zeitgemäße Umsetzung in architektonischer Form. Der städtebauliche Wunsch nach einer „Altstadtgasse“ wird erfüllt durch lange, gegenüber liegende Bauzeilen mit Vor- und Rücksprüngen in der Fassade. Die Fassaden der Gebäudezeilen bestehen aus verschieden sandfarbenden Ziegelsteinen und bilden dabei die Fassung aller Baukörper zu einem Ensemble. Der Ziegel wird hier als verbindendes Gestaltungselement eingesetzt. Auf dem Gelände entstehen 60 Wohneinheiten, 7 Stadthäuser, eine Gewerbeeinheit, 41 Studentenappartements und ein Bürogebäude für das Kirchenamt. Dieser Mix aus Wohn- und Bautypen setzt ein lebendiges Wohnquartier voraus.
- BGF: 4.123 m²
- Bauherr: Frank Heimbau Nord GmbH
- Preis: 2. Platz
- Visualisierung: archivspro.com
In der Hamburger HafenCity entsteht am Lohsepark erstmals klassisches öffentlich gefördertes Wohnen. Es entstehen 40 Mietwohnungen und eine Gewerbeeinheit in der Erdgeschosszone. 1,5-Zimmer-Appartements bis 4-Zimmer-Appartements ergeben einen vielfältigen Wohnungsmix. Die größeren 3- und 4-Zimmer-Appartements sind insgesamt als „Durchwohntypen“ geplant, die eine Anordnung der Schlafräume zum ruhigen Hof ermöglichen und gleichfalls eine schallgeschützte Loggia zum großstädtischen Quartier haben.Die Fassade zur Shanghaiallee wird geprägt durch die Gliederung des Baukörpers mit der überhöhten Erdgeschosszone und den Wohngeschossen. Der rot bunte Ziegel bildet dabei die Fassung aller Geschosse, die etwas dunkleren, leicht zurückliegenden Ziegelflächen verbinden die Fenster- und Loggienöffnungen zu geschosshohen Bändern und schaffen so eine zurückhaltende, aber großstädtische Wohnungsbauarchitektur.
- Wohnfläche: 563 m²
- Leistungsphasen: 846 m²
- Fertigstellung: 2013
- Bauherr: Privat
Unter dem Dach des 100jährigen Bauernhauses im Außenbereich von Ahrensbök entstehen durch den Umbau der Stallungen und Scheunenbereiche 3 großzügige, zeitgemäße Wohnungen. Das Erscheinungsbild des Hauses mit dem bäuerlichen Garten bleibt erhalten und wird durch moderne Architekturdetails ergänzt.
- Fertigstellung: 2012
- Bauherr: Frank Seniorenanlagen GmbH
Nahe der Innenstadt in Bargteheide entstehen 100 geförderte und frei finanzierte barrierefreie Mietwohnungen in 7 Häusern, 18 barrierefreie Reihenhäuser und eine Pflegestation mit 34 Pflegeplätzen und eine Tiefgarage mit 50 Stellplätzen.
Die Häuser umrahmen einen gemeinsamen Hof mit Wegen, Wasser- und Gartenflächen, die für die Bewohner einen Aufenthalts- und Kommunikationsraum bieten.
Die Gebäude werden in konventioneller Massivbauweise als Niedrigenergiehäuser nach dem Standard KFW 40 gebaut.
- BGF: 2.000 m²
- Bauherr: Landeshauptstadt Kiel
Die Dreifeldsporthalle bildet zusammen mit dem Neubau der Mensa an der Verbindungsachse zwischen Goetheschule und Ricarda-Huch-Schule den neu geplanten Campus des Schulzentrums am Westring. Der kubische Baukörper nimmt das den Campus prägende Material Ziegel auf, die Ostfassade ist mit transluzenter Wärmedämmung ausgerüstet.
Die Halle ist im Passivhausstandard geplant.
Das Betondach des Nebentrakts bildet mit der weiten Auskragung ein Tor und bindet die Gebäude.
Realisierungswettbewerb 2010
- Leistungsphasen: 1-9
- Fertigstellung: 2010
- Bauherr: Frank Seniorenanlagen GmbH
- Wettbewerb 2004: 1. Platz
Der ursprünglich geplante Umbau der vorhandenen Betriebs- und Lagergebäude eines längst aufgegebenen Mühlenbetriebs auf der Mühleninsel am Herrenteich musste aufgrund der schlechten Substanz verworfen werden.
Statt dessen nehmen die Neubauten Form, Material und Höhen der alten Gebäude auf und schaffen so eine Identität der Reinfelder Bürger mit dem gewohnten Stadtbild.
Die Gebäude zeichnen die Ufer der Mühlenau nach und bilden nach Innen einen geschützten Hof mit einer Brückenverbindung in die unmittelbar angrenzende Innenstadt.
Es entstanden 75 barrierefreie Miet- und Eigentumswohnungen mit Betreuungsangebot und eine Pflegestation, sowie ein kleines Museum mit Stücken aus dem alten Betrieb. Anstelle der Getreidemühle erzeugt nun eine modernes Mühlrad Strom aus der Kraft des angestauten Herrenteichs.
- BGF: 36.500 m²
- Wohnfläche: 14.500 m²
- Fertigstellung: 2012
- Bauherr: Neue Lübecker Baugenossenschaft
Hier ist nach dem Abbruch baufälliger Wohngebäude ein lebendiges innerstädtisches Quartier mit einer Mischung aus Gewerbeflächen in der Erdgeschosszone und Wohnungen in den Obergeschossen entstanden.
Die 98 Wohnungen sind einschließlich der Erschließung über Aufzüge und der Freisitze durchgängig barrierefrei konzipiert, der Wohnungsmix geht über 1 bis 4 Zimmerwohnungen.
Die Außenfassaden aus Ziegelmauerwerk sind aufgrund des hohen Schallpegels an der verkehrsreichen Straße mit entsprechenden Schallschutzfenstern versehen. Die Gartenseiten sind als Putzfassaden mit bodentiefen Fenstern und vorgestellten Skelett-Konstruktionen mit Balkonen, Stützen und einigen Verschattungslamellen ausgebildet.
- Leistungsphasen: 1-9
- Fertigstellung: 2019
- Bauherr: Sparkasse Mittelholstein AG
- Wettbewerb: 2009: 1.Preis mit esplant
Der Wandel der Anforderungen an Dienstleistungsarbeitsplätze fordert einen Umbau der Zellenbürostruktur zu offenen, modernen „Bürowelten“ mit vernetzten und flexiblen Raumstrukturen und einem verbesserten Angebot der Kommunikation.
Die ehemalige Kassenhalle verwandelt sich durch Verlegung und Neubau des Glasdachs in ein attraktives Kundenzentrum mit zeitgemäßen Serviceeinrichtungen und direkter Anbindung der Bürozonen in den Obergeschossen.
Es entsteht ein Kommunikationsraum mit vielfältigen Nutzungsmöglichkeiten für Veranstaltungen weit über das Alltagsgeschäft der Sparkasse hinaus.
Der bauliche Zustand des Gebäudes aus den 1980er Jahren macht zudem eine umfassende energetische und technische Sanierung erforderlich, durch den Einbau eines Aufzugs wird ein barrierefreier Zugang aus der Tiefgarage direkt in die Kundenhalle ermöglicht.
- BGF: 1.443 m²
- NF: 1.235 m²
- Bauherr: GMSH Abteilung Bundesbau, Eutin
Im Rahmen der Sanierung der Sportanlagen der Wagrien-Kaserne soll eine moderne Zweifeldsporthalle errichtet werden. Die Halle liegt zur gemeinsamen Nutzung der Umkleiden in unmittelbarer Nähe zum Sportplatz. Das Hallentragwerk besteht aus Stahlrahmen mit einer Dachdeckung aus Aluminiumprofilbahnen, die Außenwände sind als mehrschalige Aufbauten mit einer Verblendschale aus Klinkermauerwerk geplant.
Aufstellung EW-Bau 2010
- BGF: 5.320 m²
- NF: 2.920 m²
- Bauherr: Landeshauptstadt Kiel
Das 1935 nach den Plänen des Architekten Rudolf Schröder gebaute Schwimmbad steht unter Denkmalschutz. Die gewünschte Erweiterung erfolgt in Richtung Schrevenpark mit einem Anbau aus Ziegelmauerwerk, das mit der gerundeten Fassade die Architektursprache Schröders zitiert. Das Schwimmbad öffnet sich zum Park und steigert durch seine neue Anbindung mit dem Standort im Grünen seine Attraktivität.
Die Fassaden zum Lessingplatz bleiben im Wesentlichen unverändert und bewahren so das vertraute städtebauliche Bild.
Realisierungswettbewerb 2009
- BGF: 3.985 m²
- NF: 1.525 m² / 1.896 m²
- Bauherr: Bundesministerium für Verkehr, Bau und Stadtentwicklung, Staatliches Baumanagement Elbe-Weser
Hauptaufgabe des Gebäudes ist die Unterbringung des Lagezentrums für die Koordinierung von Einsatzmaßnahmen bei Havariefällen im Schiffsverkehr an den deutschen Küsten der Nord- und Ostsee.
Der kompakte Baukörper markiert die neue Eingangssituation des Wasser- und Schiffahrtsamts mit Tonnenhof, Werkstätten und Kaianlagen und ermöglicht ein hohes Maß an Funktionalität mit kurzen Wegen und engen Beziehungen der Nutzungsbereiche.
Dunkles Klinkermauerwerk der klaren Form signalisiert Standhaftigkeit in stürmischer Zeit. Der horizontale Fassadenrücksprung mit bronzefarbener Metallverkleidung verdeutlicht das Technikgeschoss des hochinstallierten Gebäudes.
Die zum Eingangsplatz ausgerichtete dreigeschossige Eingangshalle mit ihrer großzügigen Glasfassade schafft Transparenz und erlaubt Einblicke in die Gebäudestruktur, ohne dass das Gemeinsame Lagezentrum davon betroffen ist.
Realisierungswettbewerb 2009, Anerkennung
- BGF: 8.130 m²
- Leistungsphasen: 1-9
- Fertigstellung: 2009
- Bauherr: Diakoniestiftung Alt-Hamburg
Im Mittelpunkt des Entwurfs steht eine hundertjährige Blutbuche, die dem Innhof seinen unverwechselbaren Charakter und Foyer, Aufenthaltsbereichen, Speisesaal und Freisitzen Orientierung bietet.
Im Erdgeschoss führt eine offene Raumfolge im weiten Bogen vom Vorplatz an der Schubertstrasse über das mehrgeschossige Foyer zum Speisesaal und zu den vorgelagerten Terrassen. Die Gestaltung schafft eine enge Verbindung von Innenraum und Freiraum, bezieht die Gartengestaltung in das Erdgeschoss mit ein und macht den Wechsel der Jahreszeiten vom Foyer aus erlebbar.
Die Staffelung des Baukörpers, die Eckbetonung und die Materialwechsel von Putz- und Ziegelflächen binden das Haus für ca. 100 Bewohner in die städtebauliche Umgebung ein.
Realisierungswettbewerb 2005, 1.Preis
- Fertigstellung: 2006
- Bauherr: Wissenschaftszentrum Kiel GmbH
- Bildnachweis: Bernd Perlbach
- Visualisierung und Zeichnung: Imke Stüven - Interior Design
Im Zuge des Neubaus vom Wissenschaftszentrum in Kiel sind im Erdgeschoss ein Foyer mit Empfang, ein Café, einen Veranstaltungssaal mit 200 Plätzen und Konferenzräume.
Mobilwände ermöglichen eine Vielzahl von Nutzungsvarianten.
Die Planung erfolgte in Zusammenarbeit mit Imke Stüven Interior Design
- BGF: 12.500 m²
- Wohnfläche: 9.875 m²
- Bauherr: Landeshauptstadt Kiel
Die „Sehnsucht nach der Altstadt“ in der Innenstadt Kiels mit ihrer nüchternen, funktionalen Architektur des Wiederaufbaus ist verständlich.
Auf dem als Parkplatz genutzten Grundstück kann ein neues lebendiges Innenstadtquartier mit der Schaffung von vielfältigen Wohnnutzungen, Gastronomie, Läden und Büros entstehen. Die Gebäude sind als einzelne Häuser ablesbar und die Abfolge von Straßen, Plätzen und kleineren Gassen setzt die Maßstäblichkeit des Altstadtgrundrisses fort. Die Bebauung entlang des Jensendamms folgt mit dem Vorplatz und dem großen Baum dem historischen Stadtgrundriss. Das geplante Turmgebäude markiert das Quartier und korrespondiert mit der Nikolaikirche in der Achse der Falckstraße.
Der Bereich der alten Stadtmauer wird erlebbar gemacht.
Städtebaulicher Realisierungswettbewerb 2008
- BGF: 3.757 m²
- NF: 2.420 m²
- Fertigstellung: 2006
- Bauherr: Wissenschaftszentrum Kiel GmbH
- Wettbewerb 2004: 1. Preis
- Veröffentlicht in: dB - Deutsche Bauzeitschrift
- Bildnachweis: Bernd Perlach
Der Neubau des Wissenschaftszentrums bildet die bauliche, räumliche und ideelle Mitte des Wissenschaftsparks.
Die expressive Auskragung zum Vorplatz führt den Außenraum in das Gebäude hinein. Es öffnet sich. Lädt ein und bildet mit der Abfolge von Vorplatz, Foyer und öffentlichen Erdgeschossnutzungen eine räumliche Einheit.
Die Großzügigkeit setzt sich im Inneren über die Galerien der Obergeschosse fort und findet in den streng geordneten Geschossen im 3. Und 4. Obergeschoss ihren Abschluss. Der Baukörper leitet sich in seiner Form direkt aus den Funktionen und der Zonierung des Gebäudes ab.
Die weite Auskragung, die kraftvollen, leicht geneigten Betonstützen, die Einblicke durch die großzügigen Glasfassaden prägen den Charakter des Hauses und stehen für die Zielsetztung des Nutzungskonzepts.
Es symbolisiert mit seiner Form das offene Tor zum Wissenschaftspark. Des Erdgeschoss beinhaltet das Foyer mit Empfang, ein Café, einen Veranstaltungssaal mit 200 Plätzen und Konferenzräume.
Mobilwände ermöglichen eine Vielzahl von Nutzungsvarianten. In den Obergeschossen werden Büro- und Laborräume als variable Mietflächen für Firmen angeboten, die in Kooperationen mit der Wissenschaft arbeiten.
- BGF: 415 m²
- Leistungsphasen: 1-9
- Fertigstellung: 2008
- Bauherr: Landeshauptstadt Kiel
Der Neubau des Regattahauses im Olympiazentrum Schilksee mit der Neugestaltung des Hafenvorfeldes frischt das Ensemble von 1972 auf. Durch die exponierte Lage des Regattahauses im Vorfeld wird dem Regatta- und Vereinssport ein neuer Mittelpunkt gegeben. Das Gebäude öffnet sich zum Hafenvorfeld und nimmt mit seinen transparenten Nord- und Südfassaden die Hauptbewegungsrichtungen auf.
Der blaue Bügel bildet somit den weit sichtbaren Rahmen für das Regattahaus. Auf der Südseite gibt es ein Holzdeck, das im Schnittpunkt der Bewegungs- und Regattaachse liegt, zum Verweilen einlädt und den Zugang akzentuiert.
- Wohnfläche: 1.480 m²
- Leistungsphasen: 1-9
- Fertigstellung: 2005
- Bauherr: BIG Anlagen GmbH
- Bildnachweis: Arne Biederbeck
Das Gebäude umfasst 22 seniorengerechte Eigentumswohnungen, einen Gemeinschaftsbereich und ein Kontaktbüro des DRK. Die Lage ist mit der Nähe zur Kieler Altstadt und den vielfältigen Angeboten der Innenstadt besonders für ältere Menschen attraktiv. Durch die Hanglage hat man einen Ausblick auf den „Kleinen Kiel“, die Förde, Rathaus und Opernhaus.
- Wohnfläche: 2.600 m²
- Leistungsphasen: 1-9
- Fertigstellung: 2007
- Bauherr: BIG Anlagen GmbH
- Bildnachweis: Arne Biederbeck
Auf dem spitzen Eckgrundstück Gneisenaustraße / Gerhardstraße ist in der Nähe des Blücherplatzes dieser Neubau mit insgesamt 29 Eigentumswohnungen in attraktiver Lage entstanden. Der Entwurf ist geprägt durch das städtebauliche „Fenster“ zwischen den beiden Gebäudeteilen, es gewährt einen Einblick in den Innenhof und ermöglicht die optimale natürliche Belichtung.
- Wohnfläche: 580+566 m²
- Leistungsphasen: 1-9
- Fertigstellung: 2007
- Bauherr: BIG Anlagen GmbH
- Bildnachweis: Arne Biederbeck
Direkt an der Kiellinie, am städtischen Uferbereich der Kieler Förde, liegen diese beiden Neubauten in herausragender Lage. Durch die Hanglage der Grundstücke und die gestaffelte Anordnung der Terrassenhäuser und der Wohnungen öffnet sich der Blick auf die Kieler Förde mit vorbeiziehenden Fähren und Kreuzfahrern.
- BGF: 1.835 m²
- Fertigstellung: 2005
- Bauherr: Kommanditgesellschaft VHG
Prägend für den Entwurf des Baukörpers ist der alte erhaltenswerte Baumbestand auf dem Grundstück des alten Rathauses, insbesondere einer mächtigen Eiche. Das Gebäude weicht hier zurück, schafft einen Hof und integriert den Baum in das Haus. Erschließungsflächen mit Warte- und Empfangszonen und raumhohen Verglasungen umgreifen diese „grüne Mitte“. Die Lochfassade der flächigen Sandsteinfassaden und der klar geschnittene Körper übernehmen Gliederung und Maßstab der architektonischen Prinzipien der bestehenden Bebauung aus der Gründerzeit.
- BGF: 5.300 m²
- NF: 3.066 m²
- Fertigstellung: 2004
- Bauherr: Amt für Bauordnung und Hochbau, Bundesbauabteilung
- Bildnachweis: Aloys Kiefer
Das Gebäude aus den 1960er Jahren wies erhebliche bauphysikalische und technische Mängel auf, das tragende Stahlbetonskelett war stark angegriffen und nicht mehr tragfähig. Neben der Ertüchtigung und Verstärkung der Tragstruktur hat das Gebäude eine komplett neue Hülle aus wärmegedämmten Aluminiumfassaden, Glas- und Natursteinfassaden aus Sandsteinplatten erhalten, die technische Infrastruktur ist ebenfalls komplett erneuert worden. Ein dreigeschossiger, kompakter Atriumneubau ist über ein gläsernes Treppenhaus mit dem Hauptgebäude verbunden und beherbergt die Büros der Dozenten. Das Gebäude liegt nun als gläserner Solitär in dem umgestalteten Park des Geländes der Führungsakademie.
- BGF: 3.500 m2
- Leistungsphasen: 1-9
- Fertigstellung: 2004
- Bauherr: HSE Hamburger Stadtentwässerung
- Bildnachweis: Daniel Sumesgutner
Die erneuerten Faultürme liegen in Blickpunkt der Öffentlichkeit, vom Fischmarkt bis Neumühlen, und bilden ein markantes Erkennungszeichen im Hafen. Die Verkleidung mit metallisch glänzenden Aluminiumbahnen unterstreicht die stadtbildprägende Bedeutung. Umbau, Neubau und Erweiterungen der Betriebsgebäude in mehreren Baustufen optimieren die betrieblichen Arbeitsabläufe auf der gesamten Insel, eine neue Leitwarte überwacht die technischen Einrichtungen des Klärwerks.
- BGF: 9.500 m²
- NF: 5.400 m²
- Fertigstellung: 2002
- Bauherr: Ernst Abbe Stiftung, Jena
Ein gläsernes zweigeschossiges Foyer erschließt die mäanderartige Grundrissfigur des zweigeschossigen mit Kalksteinplatten bekleideten Gebäudes mit der Möglichkeit einer veränderbaren Raumzuordnung der verschiedenen Nutzer:
_FHG (Fraunhofer Gesellschaft) Fraunhofer Institut für Digitale Medientechnologie
_IMMS: Institut für Mikroelektronik- und Mechatronik- Systeme
_TU Ilmenau: Rektorat, Sprachenzentrum, Fakultät für Wirtschaftswissenschaften
Das Erdgeschoss nimmt alle Raumfunktionen mit den Anforderungen an eine höhere Geschossigkeit wie die teilbaren Seminar- und Besprechungräume und die großen Labore der Nanowissenschaft auf, die Innnenraumgestaltung ist geprägt durch farbige Putzflächen und Wandpaneele aus Ahorn. Eine technische Besonderheit sind die Labore der Nanotechnik mit konstanten Temperatur- und Luftfeuchtigkeitsverhältnissen und schwingungsfrei gegründeten Fundamenten für erschütterungsfreie Messungen.
- BGF: 5.300 m²
- NF: 1.950 m²
- Fertigstellung: 2004
- Bauherr: Staatsbauamt Erfurt
- Bildnachweis: Daniel Sumesgutner
Das neue Hörsaal- und Seminargebäude mit exponierter Lage öffnet sich mit dem Haupteingang zur Stadt und zum Campus. Der große Hörsaal liegt klar erkennbar als expressive ovale Form im Gebäude. Die unverwechselbare Raumform ist bestimmt durch das stark ansteigende konzentrische Auditorium mit Blick in das Ilmtal. Das helle, offene Foyer verbindet den Hörsaal mit weiteren Seminarräumen und einem kleinen Café.
- BGF: 90.000 m²
- NF: 43.000 m²
- Bauherr: Universitätsklinikum Hamburg Eppendorf
- Wettbewerb 2002: 2. Preis
- Visualisierung: Vasconi Architekten
Kern des Entwurfskonzepts ist ein hochkompaktes Gebäude mit einer inneren Passage als kommunikativem Verkehrsraum für Besucher, Patienten und Personal mit der optimalen Übersicht über die Funktionsbereiche des Krankenhauses und einer Orientierungmöglichkeit des Einzelnen im Gesamtkomplex.
Wettbewerbsentwurf zusammen mit Claude Vasconi Architekten, Paris
- BGF: 7.260 m²
- NF: 4.460 m²
- Leistungsphasen: 1-9
- Fertigstellung: 2003
- Bauherr: Wissenschafts- und Technologiepark Lübeck
- Wettbewerb 2001: 1. Preis
Mit der Entwicklung des Hochschulstadtteils übernimmt das Gebäude einen zentralen Punkt in der Verbindung der Fachhochschule mit der Universität im Stadtteilpark. Kleinere junge Technologieunternehmen aus Bereichen der Biotechnologie, Medizintechnik und Ingenieurtechnik finden flexible Räumlichkeiten und technische Infrastrukturen als Gründungsbasis mit vielen Entwicklungsmöglichkeiten im Gebäude. Innenräumlich ist eine komplexe Struktur mit Raumzonen für Büro- und Labornutzungen, Besprechungs- und Konferenzräumen und einem Café um eine zentrale Halle entstanden, die äußerlich zu einem einfachen, gläsernen Kubus zusammengefasst ist.
- BGF: 6.400 m²
- NF: 3.215 m²
- Fertigstellung: 2003
- Bauherr: Staatsbauamt Erfurt
- Bildnachweis: Daniel Sumesgutner
Den Kern des Gebäudes bildet eine Laborhalle für Maschinenbau und Fahrzeugtechnik mit technischen Versuchsfeldern, die über eine Sheddachkonstruktion natürlich belichtet werden. Die zugehörigen Büro-, Seminar- und Nebenräume liegen U-förmig in 2 Geschossen entlang der Halle und schaffen durch die einfache Struktur kurze Wege und ein hohes Maß an Übersichtlichkeit und Flexibilität.
- BGF: 2.300 m²
- NF: 1.110 m²
- Fertigstellung: 2002
- Bauherr: Hansestadt Hamburg
- Wettbewerb 2000: 1. Preis
Das Kommissariat liegt in exponierter Lage zwischen dem Deich der Süderelbe und dem Harburger Binnenhafen und unterstreicht seine Bedeutung durch die markant ausgeprägte Form in Anlehnung an die „Wolkenbügel“ der 20er Jahre. Die Außenhaut ist aus vorpatiniertem Kupferblech, die großzügig verglasten Bürogeschosse gliedern das Haus in Höhe und Funktion und erlauben den Blick in die Elblandschaft und die Liegeplätze der Schiffe. Im langgestreckten, eher introvertierten Erdgeschoss sind die sicherheitsrelevanten Kernbereiche untergebracht, im weit auskragenden Obergeschoss befinden sich ablesbar Umkleiden-, Neben- und Technikräume.
- BGF: 8.300 m²
- Bauherr: Landwirtschaftskammer Schleswig-Holstein
Im Zentrum der Anlage des Zentrums für Gartenbau liegt das Informationszentrum mit Seminarbereich und Verwaltung, das als viergeschossiger Kubus in der Landschaft einen Akzent setzt und die überörtliche Bedeutung der Anlage als Kompetenz- und Informationszentrum verdeutlicht. Dem Zentrum zugeordnet sind die Beruflichen Schulen und des Infogewächshaus. Der Versuchsbetrieb mit Hallen und Gewächshäusern (5000 m2) ist über die Anlieferzone mit der überbetrieblichen Ausbildung und deren Hallen und Gewächshäusern und den Anbauflächen im Freien verknüpft.
Realisierungswettbewerb 2002
- BGF: 18.800 m²
- Bauherr: Staatshochbauamt Erfurt
- VOF-Stegreifverfahren 2001: 2. Platz
Als bedeutendes öffentliches Gebäude orientiert es sich mit seinem Vorplatz, dem Haupteingang und dem Mehrzwecksaal nach Westen zur Innenstadt von Bad Langensalza und bildet mit der Kurklinik einen neuen städtebaulichen Raum. Vom Parkplatz bzw. von der Stadt kommend betritt man das Gebäude über den Haupteingang, Wartezone, Foyer und Info-Bereich bilden einen offenen Übergang zu dem teilbaren Mehrzwecksaal. Eine kleine Caféteria versorgt sowohl diesen Foyer-Bereich als auch die südlich angrenzenden Pausenräume und Terrassen. Die Kammstruktur des Gebäudes beinhaltet Labor- und Büroräume des Amtes, die Ringstruktur innen verbindet die unterschiedlichen Fachbereiche mit teilweise gesondert abgesicherten Laboren der Klasse S3.
- BGF: 1.200 m²
- Fertigstellung: 2000
- Bauherr: Hamburger Stadtentwässerung
Das kleine Schulungsgebäude liegt direkt im landschaftlich reizvollen Alstertal mit altem Baumbestand an einer kleinen Lichtung. Die großzügigen Glasfassaden lassen Innen- und Außenraum verwachsen, die Seminarteilnehmer verbringen einen Tag „im Grünen“. Ein Niveauversatz ermöglicht unterschiedliche Raumhöhen des Foyers und der mit Mobilwänden wandelbaren Veranstaltungsräume im Erdgeschoss.
- BGF: 4.000 m²
- Leistungsphasen: 1-8
- Fertigstellung: 2000
- Bauherr: GMSH Fachbereich Landesbau, Kiel
- Bildnachweis: Leisner Fotografie
Die Laborhallen nehmen die lineare Struktur der ehemaligen Schiffbauhallen im Stadtteil Dietrichsdorf auf, docken mit einer Brücke an bestehende, umgenutzte Altbauten an und binden das Gebäude der alten Metallgießerei in das Ensemble ein. Leichte Stahlrahmenkonstruktionen mit bogenförmigen Dächern und Glasfassaden sollen Einblicke in die Arbeit des Fachbereichs Maschinenbau mit Kolben- und Strömungsmaschinen, Fahrzeugtechnik und Strömungstechnik, sowie der Elektrotechnik mit Hochspannungs-, Stossstrom- und Labor für elektromagnetische Verträglichkeit vermitteln.
- Wohnfläche: 7.900 m²
- Fertigstellung: 1999
- Bauherr: Frank Heimbau Kiel, Kieler Wohnungsbaugesellschaft
- Landespreis Schleswig-Holstein : 2001
- Bildnachweis: W. Schäfer
Auf Grundlage des Ergebnisses eines Realisierungswettbewerbs sind auf der ehemaligen Brachfläche Mercatorwiese 3- und 4-geschossige Häuser mit Staffelgeschossen mit geförderten Miet- und Eigentumswohnungen entstanden. Der Innenbereich des Quartiers ist frei von KFZ, die in Tiefgaragen mit Zufahrten in den umgebenden Straßen untergebracht sind. Die Wohnungsgrößen in den mit hellen Putzflächen gestalteten Niedrigenergiehäuser reichen von kleinen Apartments bis zu Maisonettewohnungen für Familien mit Kindern.
- Wohnfläche: 6.590 m²
- Fertigstellung: 1997
- Bauherr: Frank Heimbau Kiel GmbH (Studentenwohnen), BIG Anlagen GmbH (Seniorenwohnen)
- Wettbewerb 1995: 1. Preis
- Bildnachweis: W. Schäfer
Auf dem innerstädtischen Gelände der ehemaligen Holstenbrauerei ergab sich die Möglichkeit, ein Wohnquartier in attraktiver Wohnlage zu errichten. Der Entwurf für das neue Wohnquartier leitet sich aus den Besonderheiten der städtebaulichen Lage ab: Die hohe Randbebauung aus der Gründerzeit bildet einen massiven, schützenden Rahmen für die kleinteilige Neubebauung, die als aufgelockerte, lebendige Struktur in diesem Rahmen angeordnet ist. Die Baukörper bilden im nördlichen Bereich eine offene Zeilenstruktur mit differenzierten Raumfolgen. Diese privaten Freibereiche sind keine bloßen Abstandsflächen, sondern durch die Richtungswechsel entstehen individuelle Zonen, deren Breite auf die Geschossigkeit abgestimmt ist. In der Gesamtanlage mit 316 Wohneinheiten sind unterschiedliche Wohnformen miteinander verknüpft. Im Eingangsbereich ein Büro- und Geschäftshaus mit anschließendem Studentenwohnheim und Seniorenwohnanlage. Nördlich der Erschließung liegen 6 Blöcke mit geförderten und Eigentumswohnungen.
- BGF: 3.150 m²
- Fertigstellung: 1995
- Bauherr: Landeshauptstadt Kiel
- Bildnachweis: Aloys Kiefer
Der neue Standort der Grundschule liegt gegenüber dem umgebenden Stadtteil Kiel- Hassee innerhalb einer ehemaligen Kiesgrube verborgen. Ein langgestrecktes Bauwerk mit durchlaufendem Dach markiert den Eingang zum Schulhof. Die Klassenhäuser gruppieren sich um den Hof und sind deutlich ablesbar und mit individuellen Farbgebungen versehen. Die Bindung der Häuser übernimmt eine bogenförmige geputzte Wand, sie formt den Flur mit freier Treppe und Galerie. Die Pausenhalle verbindet den linearen Baukörper mit dem Bogen der Klassenhäuser.

















































































































































































































































































































































